Glass Cube Recording Studio / Lounge
Conceptual
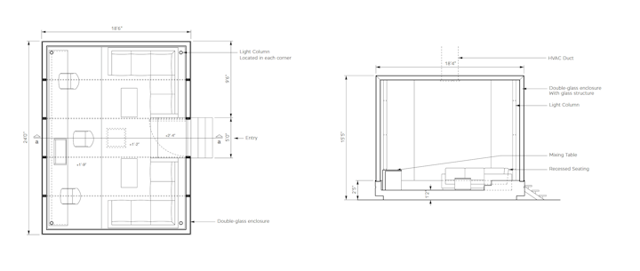
This conceptual lounge for a recording artist is set within an industrial space. Setting up a hyper contrast between the transparent minimalism & the dark brutalism of the space, this design is meant to monitor & experience the sound in a more vast space of recording. Programmable light columns provide both support and illumination for the aural experience.
Developed at Optimist Design, 2016
©2026 Jason Immaraju. All rights reserved. No part of this website may be reproduced without permission.